
DL Real Estate vous propose un Local d'activité / Entrepôt en location situé à Brétigny-sur-Orge (91220), d'une superficie totale de 425 m².
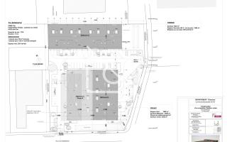
DL Real Estate vous propose cet ensemble construit en neuf, à louer. Il est composé de 6 cellules divisées en bureaux et activités. Cet ensemble est situé sur la commune de Bretigny sur Orge (91).
Aménagement: :
57 places de stationnement VL
Accés à l'entrepôt:
Gros Porteurs
Moyens Porteurs
Voie Pietonne Séparée
1 Porte de plain pied:
4,10 x 4,10
Couverture :
Bac acier multicouche
| Étage | Type | Surfaces |
|---|---|---|
| 1 | Bureaux cellule 5 | 65 m² |
| 0 | Activités cellule 5 | 360 m² |