
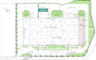
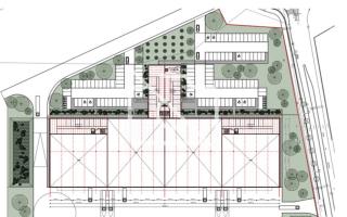
DL Real Estate vous propose un Local d'activité / Entrepôt en location situé à Émerainville (77184), d'une superficie totale de 7305 m².
7322 m2 d'entrepôt classe A
Accés :
- Émerainville-Pontault-Combault (J)
- A4 et A104
- ligne E
| Étage | Type | Surfaces | 
|---|---|---|
| 0 | Entrepôts | 7152 m² | 
| 1 | Bureaux | 153 m² |