
DL Real Estate vous propose un Local d'activité / Entrepôt en location situé à Ozoir-la-Ferrière (77330), d'une superficie totale de 110 m².
Dl Real Estate vous propose des locaux d'activités neufs de 100 m2 à 220 m2 en plein coeur de la zone d'activité d'Ozoir-la-Ferrière.
Accés à l'entrepôt:
Gros Porteurs
Moyens Porteurs
Voie Pietonne Séparée
Couverture :
Bac acier multicouche
| Étage | Type | Surfaces | 
|---|---|---|
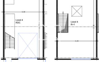
| RDC | Activitéslot A | 80 m² | 
| R+1 | Bureaux lot A | 30 m² |