
DL Real Estate vous propose un Local d'activité / Entrepôt en location situé à Villebon-sur-Yvette (91140), d'une superficie totale de 6300 m².
DL Real Estate vous propose un bâtiment de 6 300 m² dans un parc en copropriété clos et sécurisé.
Parc en copropriété clos et sécurisé:
▪ Portail principal coulissant sur horloge, fermeture soir et week-
end
▪ Réseau de caméras communes
▪ Ravalement de la façade avant fait en 2019
▪ Résine du sol de l’entrepôt principal refaite en 2020
▪ Chaudière à gaz neuve installée en 2022
▪ Emplacements de stationnement extérieurs privatifs + emplacements
visiteurs à l’entrée de la zone
Activités:
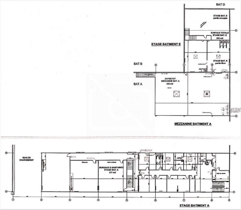
▪ Hauteur sous poutre: 5,5 m
▪ 4 accès: 2 quais et 2 plain-pied via portes sectionnelles
électriques
▪ Accès secondaire pour déchargement latéral sur le côté du
bâtiment
▪ RDC et R+1 Bureaux:
▪ Locaux sociaux
▪ Plusieurs blocs sanitaires
▪ Rénovation possible selon les besoins des prospects
| Étage | Type | Surfaces |
|---|---|---|
| RDC | Activité | 5090 m² |
| RDC/R+1 | Bureaux | 1210 m² |