
DL Real Estate vous propose un Local d'activité / Entrepôt en vente situé à Ézanville (95460), d'une superficie totale de 4457 m².
Surfaces de 458m² à 824 m² – Livraison T2 2027 – VEFA
Situé à Ezanville, en cœur de zone d’activités dynamique, DL Real Estatevous propose à la vente plusieurs locaux d’activités neufs en VEFA, alliant performance, durabilité et fonctionnalité
CARACTÉRISTIQUES TECHNIQUES :
1 porte sectionnelle (3,5 x 3 m) + 1 porte à quai (2,80 x 3 m) par lot
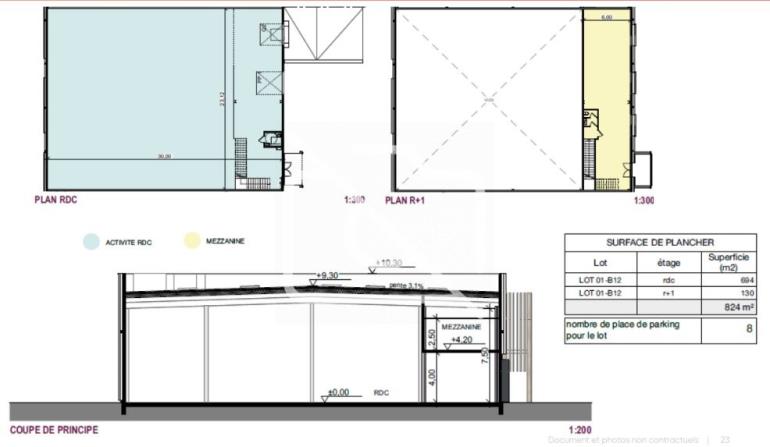
Hauteur libre d’environ 7,5 m
Éclairage industriel 250 lux moyen
Contre-bardage intérieur blanc
Électricité tarif jaune ou bleu
Sanitaires PMR carrelés
Site clos et sécurisé
Voirie légère pour circulation et manœuvre
Espaces verts paysagers avec espèces locales
Stationnements privatifs
Interphone avec commande GSM
Circulation piétonne en béton désactivé
♻DÉMARCHE ÉCO-RESPONSABLE :
Certification BREEAM (performance environnementale reconnue)
Label BIODIVERCITY (valorisation de la biodiversité)
Gestion optimisée de l’énergie, de l’eau et des déchets
Bien-être des occupants & accessibilité aux transports durables
Un emplacement stratégique dans le Val-d’Oise, à proximité des axes majeurs, pour optimiser vos flux logistiques et accueillir vos équipes dans des conditions modernes et performantes.
Contactez-nous dès maintenant pour recevoir la documentation complète, les plans, ou organiser un rendez-vous.
Opportunité rare pour investisseurs, PME, logistique ou entreprises industrielles souhaitant s’implanter dans un site dernière génération.
| Étage | Type | Surfaces |
|---|---|---|
| LOT B11 - RDC | Activité, entrepot, stockage | 618 m² |
| LOT B11 - R+1 | Bureaux | 129 m² |
| LOT B12 - RDC | Activité, entrepot, stockage (SOUS OFFRE) | 694 m² |
| LOT B12 - R+1 | Bureaux (SOUS OFFRE) | 130 m² |
| LOT B13 - RDC | Activité, entrepot, stockage (SOUS OFFRE) | 694 m² |
| LOT B13 - R+1 | Bureaux (SOUS OFFRE) | 130 m² |
| LOT B21 - RDC | Activité, entrepot, stockage (SOUS OFFRE) | 359 m² |
| LOT B21 - R+1 | Bureaux (SOUS OFFRE) | 99 m² |
| LOT B22 - RDC | Activité, entrepot, stockage | 381 m² |
| LOT B21 - R+1 | Bureaux | 89 m² |
| LOT B22 - RDC | Activité, entrepot, stockage | 436 m² |
| LOT B23 - R+1 | Bureaux | 89 m² |
| LOT B24 - RDC | Activité, entrepot, stockage | 520 m² |
| LOT B24 - R+1 | Bureaux | 95 m² |