
DL Real Estate vous propose un Local d'activité / Entrepôt en vente situé à Saint-Pierre-du-Perray (91280), d'une superficie totale de 7772 m².
DL propose des locaux d'activités à vendre à partir de 423m2 proche de la N104
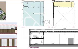
Aménagement: :
BUREAUX
Open-space
Accés à l'entrepôt:
Gros Porteurs
Moyens Porteurs
Accés :A5 A6 N104
| Étage | Type | Surfaces |
|---|---|---|
| Cellule A1 | RDC accueil | 51 m² |
| Cellule A1 | RDC activité | 277 m² |
| Cellule A1 | R+1 | 319 m² |
| Cellule A2 | RDC accueil | 51 m² |
| Cellule A2 | RDC activité | 277 m² |
| Cellule A2 | R+1 | 104 m² |
| Cellule A3 | RDC accueil | 51 m² |
| Cellule A3 | RDC activité | 277 m² |
| Cellule A3 | R+1 | 104 m² |
| Cellule A4 | RDC accueil | 51 m² |
| Cellule A4 | RDC activité | 277 m² |
| Cellule A4 | R+1 | 104 m² |
| Cellule B3 | RDC accueil | 51 m² |
| Cellule B3 | RDC activité | 277 m² |
| Cellule B3 | R+1 | 104 m² |
| Cellule B4 | RDC accueil | 51 m² |
| Cellule B4 | RDC activité | 277 m² |
| Cellule B4 | R+1 | 104 m² |
| Cellule D1 | RDC accueil | 51 m² |
| Cellule D1 | RDC activité | 309 m² |
| Cellule D1 | R+1 | 104 m² |
| Cellule D2 | RDC accueil | 51 m² |
| Cellule D2 | RDC activité | 303 m² |
| Cellule D2 | R+1 | 103 m² |
| Cellule D3 | RDC accueil | 51 m² |
| Cellule D3 | RDC activité | 303 m² |
| Cellule D3 | R+1 | 103 m² |
| Cellule D4 | RDC accueil | 51 m² |
| Cellule D4 | RDC activité | 309 m² |
| Cellule D4 | R+1 | 104 m² |
| Cellule E1 | RDC accueil | 51 m² |
| Cellule E1 | RDC activité | 309 m² |
| Cellule E1 | R+1 | 104 m² |
| Cellule E2 | RDC accueil | 51 m² |
| Cellule E2 | RDC activité | 303 m² |
| Cellule E2 | R+1 | 103 m² |
| Cellule E3 | RDC accueil | 51 m² |
| Cellule E3 | RDC activité | 303 m² |
| Cellule E3 | R+1 | 103 m² |
| Cellule E4 | RDC accueil | 51 m² |
| Cellule E4 | RDC activité | 309 m² |
| Cellule E4 | R+1 | 104 m² |
| Cellule F1 | RDC accueil | 51 m² |
| Cellule F1 | RDC activité | 309 m² |
| Cellule F1 | R+1 | 104 m² |
| Cellule F2 | RDC accueil | 43 m² |
| Cellule F2 | RDC activité | 311 m² |
| Cellule F2 | R+1 | 103 m² |
| Cellule F3 | RDC accueil | 51 m² |
| Cellule F3 | RDC activité | 309 m² |