
DL Real Estate vous propose un Local d'activité / Entrepôt en vente situé à Bagnolet (93170), d'une superficie totale de 744 m².
DL Real Estate, expert en immobilier d’entreprise, vous propose un local d’activités fonctionnel de 744 m², idéal pour les sociétés recherchant un site performant et facilement accessible.
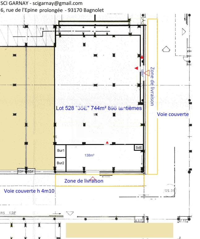
Caractéristiques du local :
Surface totale : 744 m²
2 portes d’accès existantes avec possibilité d’en créer une 3ᵉ selon vos besoins
Hauteur sous plafond : 5,40 m permettant un stockage optimisé
Accès gros porteurs, adapté aux flux logistiques et aux livraisons
Places de parking privatives pour vos collaborateurs et visiteurs
Site clos et sécurisé
Les atouts :
Local modulable et évolutif selon vos projets d’implantation
Adapté à des activités industrielles, artisanales, logistiques ou de stockage
Bonne accessibilité routière avec un environnement professionnel dynamique
Ce local d’activités de 744 m² constitue une opportunité rare pour développer votre entreprise dans un bâtiment pratique, avec des accès poids lourds et un fort potentiel d’adaptation.
Contactez dès aujourd’hui DL Real Estate pour obtenir le dossier complet et organiser une visite.
| Étage | Type | Surfaces |
|---|---|---|
| RDC | Stockage / entrepôt | 744 m² |